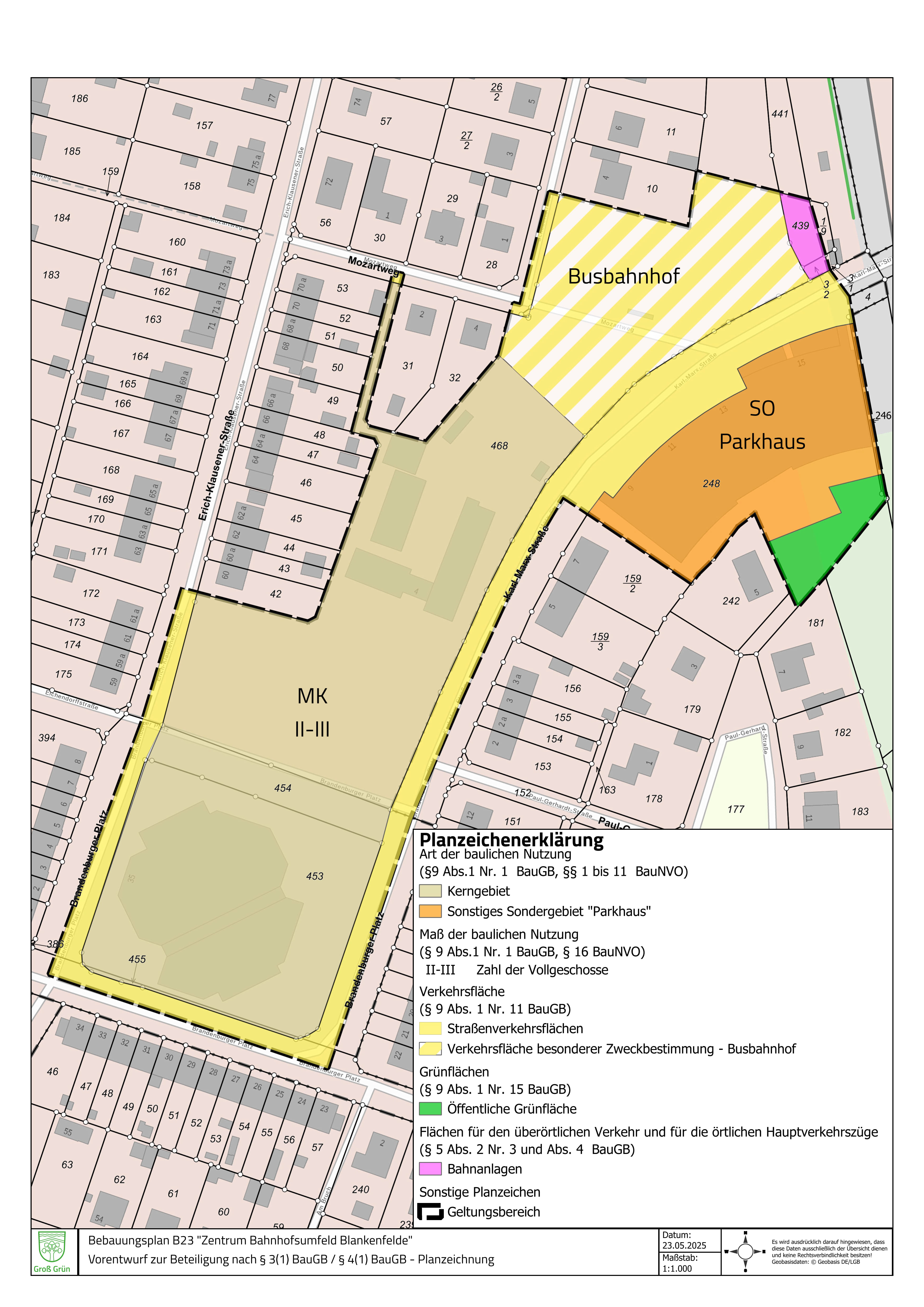
Erarbeitung des Bebauungsplans einschließlich Planzeichnung mit textlichen Festsetzungen und der Begründung gem. § 2a BauGB. Das ca. 2,9 ha große Plangebiet befindet sich unmittelbar westlich angrenzend an den S- und Regionalbahnhof Blankenfelde.
Das im Mai 2025 als Grundlage für das Bebauungsplanverfahren B 23 „Zentrum Bahnhofsumfeld Blankenfelde“ beschlossene Konzept sieht einen neuen und im Vergleich zum alten ZOB größeren Busbahnhof in Nähe des S- und Regionalbahnhofs vor, sodass es kürzere Umsteigebeziehungen geben wird. Entlang der Karl-Marx-Straße entstehen neue Gebäude, in denen u.a. der Bürgerservice, Musikschule, den Nahversorger und das Standesamt der Gemeinde, ein Familienzentrum sowie gastronomische, medizinische und multifunktional nutzbare Einrichtungen untergebracht werden sollen.
Quelle Luftbild: Gemeinde Blankenfelde-Mahlow.
letzte Änderung: 06.12.2024
